USED MODELS
中古トレーラーハウス
中古トレーラーハウスに関しましては、簡単リフォームから
フルリフォーム(構造上の補強から外壁交換、床、壁、天井張替え、全ての家具交換、便器、エアコン等新品交換等)までご提案させて頂きます。
現在売り出し中の特選中古トレーラーハウス

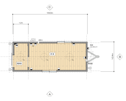
No.00
問い合わせ 026-221-9997住居モデル
- 販売価格
- ASK円(税込)
探しているトレーラーハウスの種類など教えていただきましたら事前にご案内ができます。

No.91
カタリナ店舗モデル
- 販売価格
- 7370000円(税込)
| 製造年 | 2020 |
|---|---|
| サイズ | 全長6m×幅2.4m |
| 装備 | エアコン 床暖房 |
詳しくはお問い合わせください。

No.90
グランドスカイ(蔵土)店舗モデル
- 販売価格
- 8800000円(税込)
| 製造年 | 2021年製 |
|---|---|
| サイズ | 全長12m×幅3.4m |
| 装備 | 厨房エリア・水洗トイレ・洗面台・エアコン2台・屋上手摺付き |
屋上付きトレーラーハウス特許取得!初めてグランドスカイが中古で出ました!
サイズはフルサイズ(12m×3.4m)!
お問い合わせ見学希望のお客様はお電話もしくはホームページ問い合わせからお願いします。
※外観写真に写っているデッキ階段は費用に含まれておりません。

No.85
ロイヤルWロフト住居モデル
- 販売価格
- 4400000円(税込)
| 製造年 | 2013年製 |
|---|---|
| サイズ | 全長11m×幅3.4m |
| 装備 | キッチン・ユニットバス・水洗トイレ・洗面台・ロフト |
大人気ロイヤルWロフトの中古が出ました!お問い合わせはお電話からお願いします。

No.84
カタリナ店舗モデル
- 販売価格
- 3850000円(税込)
| 製造年 | 2016年製 |
|---|---|
| サイズ | 全長9×幅2.8m |
| 装備 | エアコン1台 |
事務所として使用されていました。

No.89
カタリナ店舗モデル
- 販売価格
- 6,710,000円(税込)
| 製造年 | 2023年製 |
|---|---|
| サイズ | 全長9m×幅2.4m |
| 装備 | エアコン付き |
外壁:レッドウッド







